No.I25002
![]()
| 物件住所 | 邑南町中野 |
|---|---|
| 売買/賃貸 | 売買(120万円)/賃貸(5万円) |
| 敷地面積 | - |
| 延べ床面積 | - |
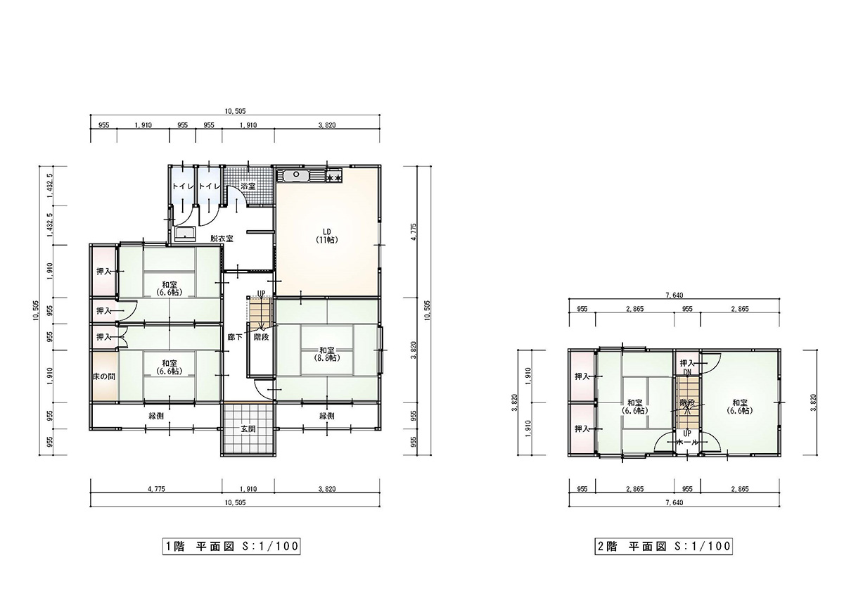
| 間取り | 6部屋+台所 |
| 構造等 | 木造 2階建て |
| 敷金 等 | - |
| 建築年 | 1979年建築 |
| 修繕 | 修繕不要 |
| 水道/トイレ | 町水道/水洗 |
| 風呂 | 灯油 |
| CATV | 接続済み |
| ペット | 可 |
| ハザードマップ | 該当なし |
| 備考 | ・定住を希望する方、自治会加入される方を歓迎します。 ・全部屋エアコン付きです。 |
No.I25002
![]()
| 物件住所 | 邑南町中野 |
|---|---|
| 売買/賃貸 | 売買(120万円)/賃貸(5万円) |
| 敷地面積 | - |
| 延べ床面積 | - |
| 間取り | 6部屋+台所 |
| 構造等 | 木造 2階建て |
| 敷金 等 | - |
| 建築年 | 1979年建築 |
| 修繕 | 修繕不要 |
| 水道/トイレ | 町水道/水洗 |
| 風呂 | 灯油 |
| CATV | 接続済み |
| ペット | 可 |
| ハザードマップ | 該当なし |
| 備考 | ・定住を希望する方、自治会加入される方を歓迎します。 ・全部屋エアコン付きです。 |